一份来自嘉禾的信赖:公园华府120㎡旧房蜕变记,19W预算优化至17W落地

信任,能跨越城市的距离。本案的业主夫妇来自嘉禾,经过多方比较,最终选择跨越地域,将他们在郴州公园华府的120㎡旧房托付给我们。这套房子原始结构不尽合理,改造工程量大。经过我们与业主的多次深入沟通,最初的19W预算方案,最终通过享受公司活动优惠,以17W的超值价格圆满落地,实现了一场从格局到颜值的彻底焕新。

公园华府7

项目档案与信任之旅

  • 项目地址湖南郴州 · 公园华府
  • 项目面积:120㎡
  • 房屋状况:毛坯新装
  • 装修风格现代风
  • 业主背景:来自嘉禾的改善住房夫妻
  • 落地造价:17W(预算优化成果)
  • 项目特点户型改动大拆改工程量多

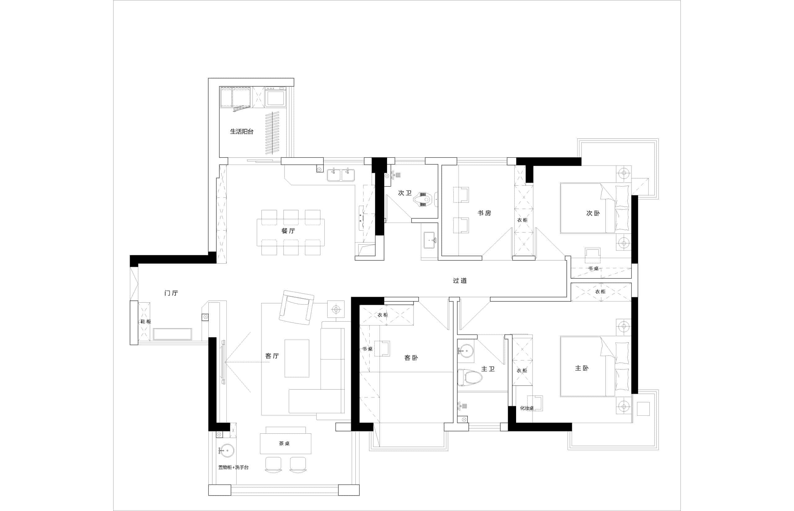
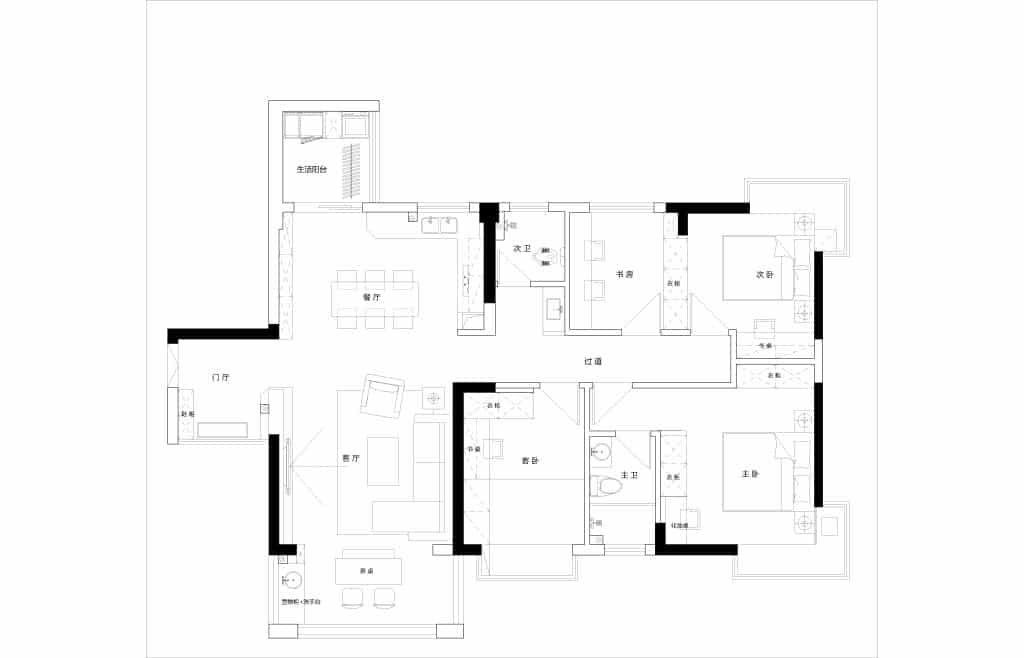
从“结构图”到“平面图”的焕新魔法

公园华府 17 1604 模型
公园华府 17 1604 模型1

本案的核心在于对户型的重塑。如上图所示,我们针对原始户型的痛点进行了大胆而精准的改造:

  • 格局再造:打通了 “厨房与餐厅之间的隔墙”,实现了客餐厨一体的开放式布局,极大提升了空间通透性与互动性。
  • 动线优化:重新规划了 “次卧与书房的关系”,既扩大了两个房间的空间,又增加了储物能力。

每一次墙体的拆除与新建,都是为了更贴合业主的生活习惯。

17W预算的精准落地

从最初的19W预算到最终的17W落地,这不仅是价格的优化,更是我们与业主共同努力、相互信任的成果。业主抓住了公司的优惠活动,而我们则通过:

  • 科学的材料规划:在关键项目上用足预算,在次要项目上精选高性价比产品。
  • 高效的施工管理:严谨的工期安排减少了不必要的开销。
  • 透明的报价体系:让每一分钱都花在明处,杜绝隐性消费。

最终,在保证工程量繁多的拆改项目和整体品质不受影响的前提下,成功实现了预算的控制。

公园华府3

跨城选择,用心不负所托

从嘉禾到郴州,每一次往返都承载着业主的期盼。我们通过建立专属服务群、定期发送工地播报、关键节点视频沟通等方式,消除了距离的隔阂,让这对嘉禾的夫妇虽身在外地,却能全程参与家的“成长”,真正做到了省心、放心。

公园华府2

结语与行动号召:

无论您身在嘉禾,还是郴州其他县市,一个好的家装体验,值得您的一次选择。我们珍视每一份远道而来的信赖,并承诺用不负所托的工地品质、透明无忧的预算管理和专业高效的服务,为您交付一个理想中的家。

发表评论

滚动至顶部

免费预约设计服务

您的每一个梦想之家,都值得我们精心打造.

我们承诺对您的信息严格保密,仅用于提供服务。

隐私政策