内行人的选择:湖南郴州·铂悦府111㎡现代风品质改善宅邸圆满交付
在装修行业,能获得业主的认可,是职责所在;而能赢得材料供应商的信赖并将其推荐给亲友,则是对我们专业能力、施工品质与商业信誉的最高褒奖。本案位于湖南郴州铂悦府,面积为111㎡,作为业主的改善型住房,我们以简约而不简单的现代风格,通过14万元硬装全包服务,交上了一份令内行人都满意的答卷。
项目档案与信任起源
- 项目地址:湖南郴州 · 铂悦府
- 项目面积:111㎡
- 装修风格:现代风
- 房屋属性:改善型住房
- 服务模式:硬装全包
- 落地造价:14W
- 信任起源:合作多年的优质供应商,基于对我们材料应用、工艺标准与管理流程的深度了解,亲自推荐。
现代风设计理念解析
在本案中,我们摒弃冗余装饰,聚焦于空间、光影与材质的本质之美,诠释现代风格的精髓:
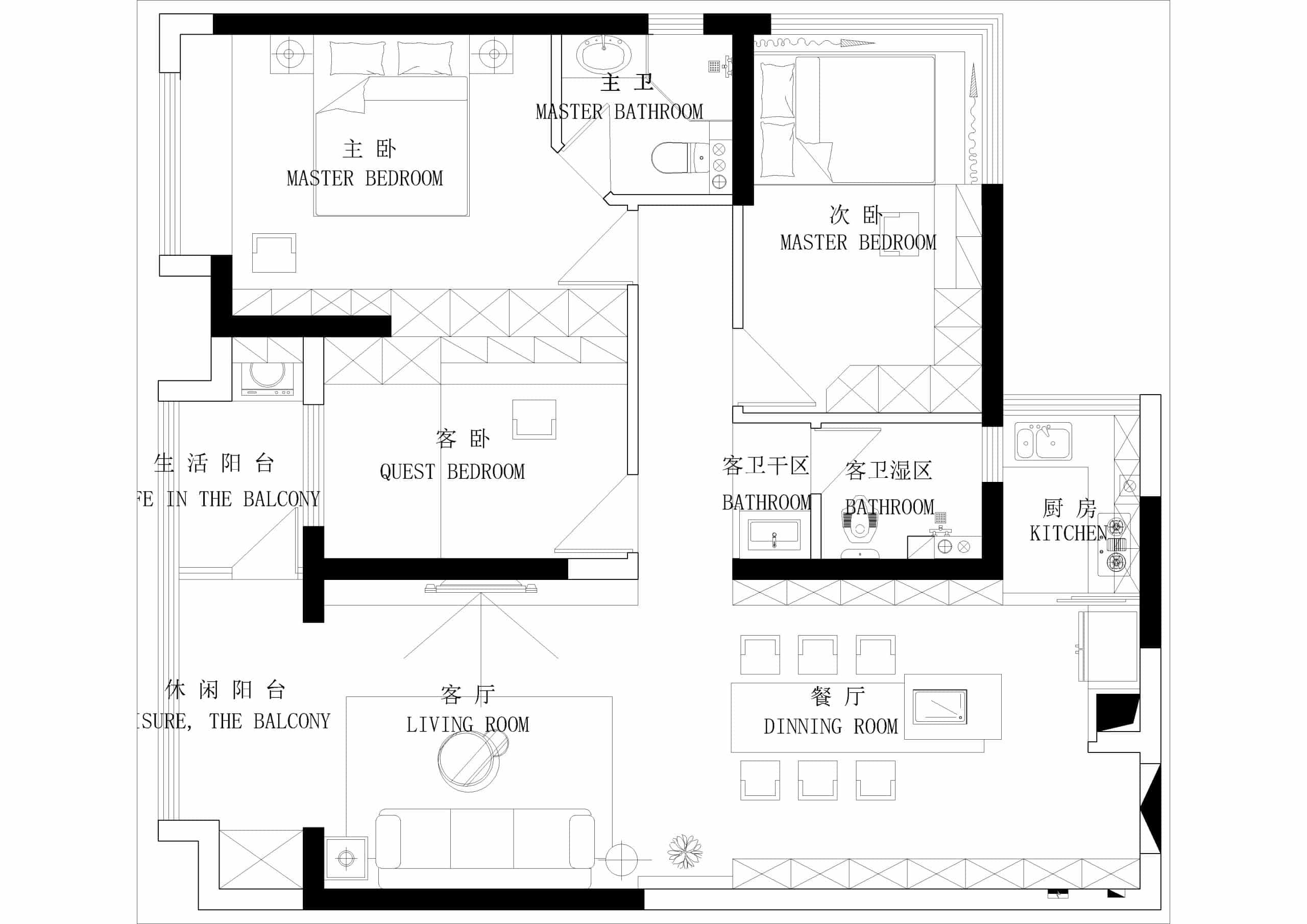
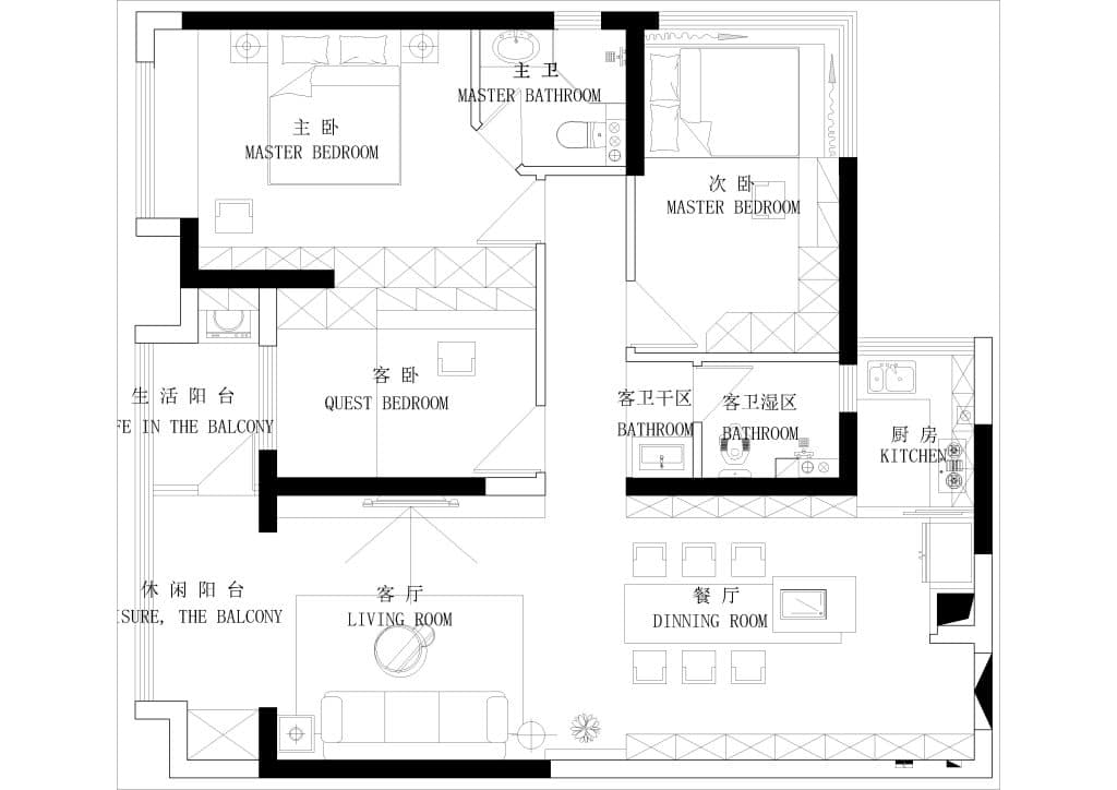
- 功能主义布局:遵循“形式追随功能”的原则,对动线与收纳进行科学规划,让111㎡的空间显得开阔通透,满足改善住房对舒适度的核心诉求。
- 材质精准搭配:运用天然石材、木质饰面、金属收边等材质,在统一的色调中寻求肌理的变化,营造出高级、沉稳的居家质感。
- 光影作为设计:通过主灯设计(辅助照明灯、射灯、线性灯带),构建多层次的光影系统,让光线本身成为勾勒空间轮廓的画笔。
14万硬装全包的品质基石
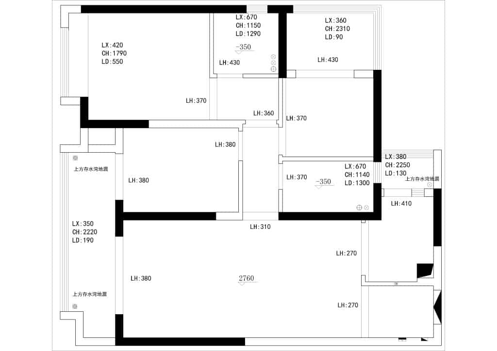
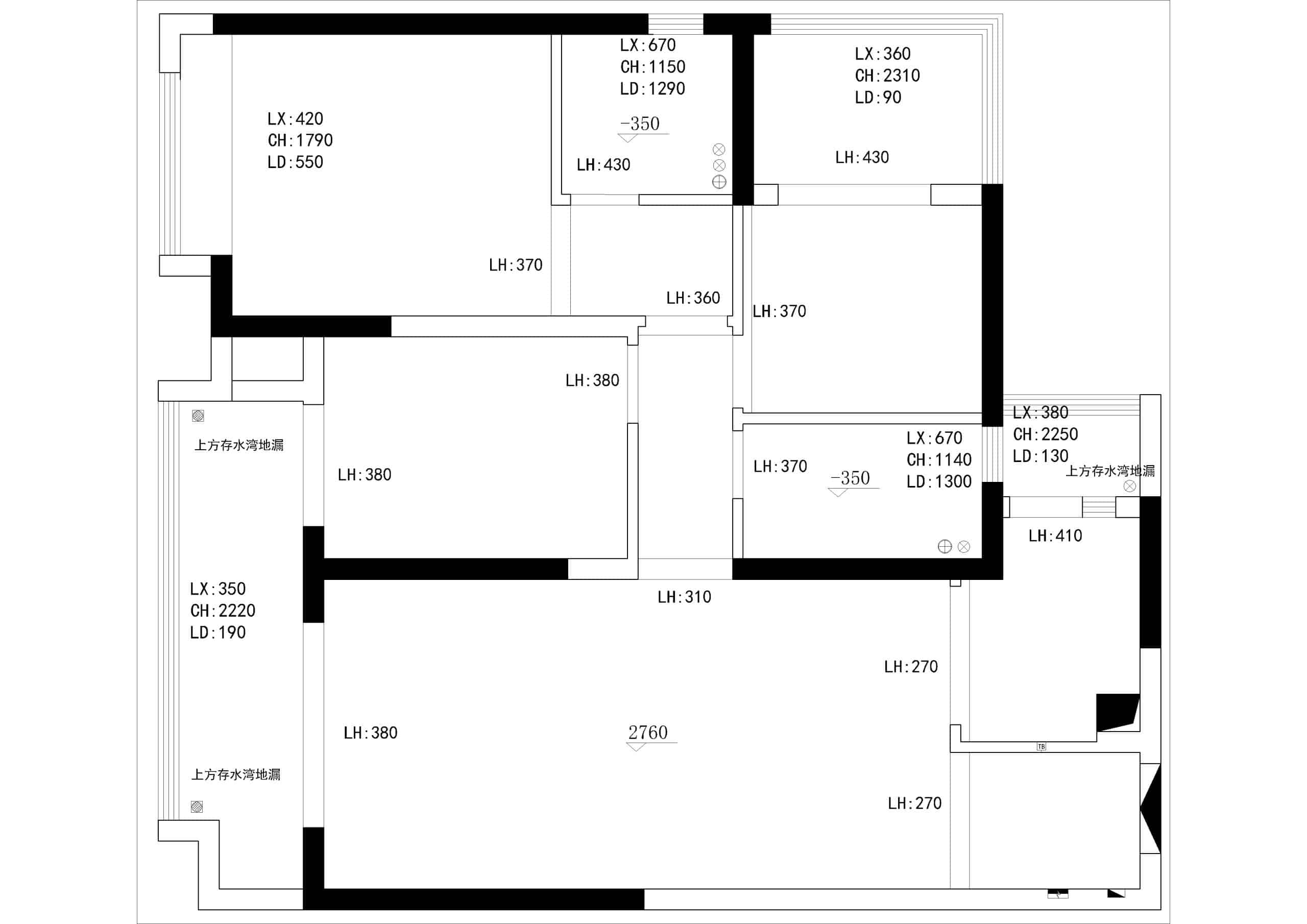
对于一套111平的改善型住房,业主关心的不仅是“硬装全包需要多少钱”,更是“钱是否花得值”。本项目14万元的硬装投入,全面覆盖:
- 结构优化:为契合居住习惯进行的合理化墙体改造。
- 隐蔽工程:全部水电、防水、基层处理等“良心工程”,采用品牌辅材,工艺标准远超行业规范。
- 表面工程:全屋墙地顶基础处理、定制柜体、室内门、瓷砖铺贴等。
供应商的推荐,正是源于对我们在这部分“看不见”的工程上,始终坚持高标准的认可。
业界口碑,信赖的巅峰
“内行看门道”。当与我们朝夕相处的合作伙伴,都放心地将自己的朋友托付于我们时,这份信任,重于千钧。它证明了我们不仅能为业主呈现高颜值的家,更在材料的合规使用、工艺的精益求精上,经得起最严苛的审视。
结语与行动号召:
又一套承载着业界认可与家庭期盼的新居完美落地。如果您同在郴州,正在铂悦府或其它小区寻觅一个真正靠谱的装修团队,欢迎您来实地考察我们的工地,感受那份“内行人”才懂的品质细节。